Property
Beds
4
Full Baths
3
1/2 Baths
1
Year Built
2025
Sq.Footage
2,831
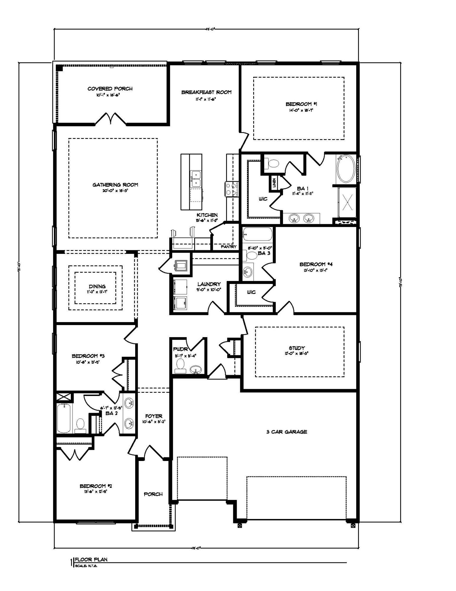
Welcome to 739 Old Ferry Road, a new home floor plan at Holley Grove at Peach Creek in Santa Rosa Beach Florida. This is a waterfront property that will feature the Camden floorplan. This floorplan has an expansive foyer that leads to a thoughtfully designed open concept living space with 9' ceilings. It features four bedrooms and three and a half bathrooms. With approximately 2,800 SF of living space, this home will have EVP flooring throughout, matte black fixtures, a tile backsplash in the kitchen and quartz countertops. The heart of the home reveals a beautifully appointed kitchen, with a center island, upper and lower cabinetry, a walk-in pantry and overlooks the great room and an adjacent dining area all illuminated by natural light from the windows. The living and dining areas flow seamlessly, with double doors leading out to a covered back patio. The living, dining and primary bedroom have tray ceilings which give a feel of high ceilings. At the back of the home is the primary bedroom, offering a peaceful retreat with a luxurious en-suite bathroom. The primary bathroom has a vanity with dual sinks, a walk-in shower, soak tub, and a substantial walk-in closet. An additional bedroom with its own bathroom, walk-in closet and dedicated study is thoughtfully positioned for privacy and ideal as a guest bedroom. Two exceptional features of this home are the location and the three-car garage.
Features & Amenities
Interior
-
Other Interior Features
Kitchen Island
-
Total Bedrooms
4
-
Bathrooms
3
-
1/2 Bathrooms
1
-
Cooling YN
YES
-
Cooling
Central Air
-
Heating YN
YES
-
Heating
Electric, Central
-
Pet friendly
N/A
Exterior
-
Garage
No
-
Parking
Garage Door Opener, Attached
-
Patio and Porch Features
Covered
-
Pool
No
Area & Lot
-
Lot Features
Wooded
-
Lot Size(acres)
0.7
-
Property Type
Residential
-
Property Sub Type
Single Family Residence
-
Architectural Style
Traditional
Price
-
Sales Price
$949,900
-
Zoning
Resid Single Family
-
Sq. Footage
2, 831
-
Price/SqFt
$335
HOA
-
Association
YES
-
Association Fee
$316
-
Association Fee Frequency
Quarterly
-
Association Fee Includes
N/A
School District
-
Elementary School
Dune Lakes
-
Middle School
Emerald Coast
-
High School
South Walton
Property Features
-
Stories
1
-
Sewer
Public Sewer
-
Water Source
Public
Schedule a Showing
Showing scheduled successfully.
Mortgage calculator
Estimate your monthly mortgage payment, including the principal and interest, property taxes, and HOA. Adjust the values to generate a more accurate rate.
Your payment
Principal and Interest:
$
Property taxes:
$
HOA fees:
$
Total loan payment:
$
Total interest amount:
$
Location
County
Walton
Elementary School
Dune Lakes
Middle School
Emerald Coast
High School
South Walton
Listing Courtesy of Eric J Weisbrod , DR Horton Realty of Emerald Coast LLC
RealHub Information is provided exclusively for consumers' personal, non-commercial use, and it may not be used for any purpose other than to identify prospective properties consumers may be interested in purchasing. All information deemed reliable but not guaranteed and should be independently verified. All properties are subject to prior sale, change or withdrawal. RealHub website owner shall not be responsible for any typographical errors, misinformation, misprints and shall be held totally harmless.

Principal Broker
EugenePontecorvo
Call Eugene today to schedule a private showing.

* Listings on this website come from the FMLS IDX Compilation and may be held by brokerage firms other than the owner of this website. The listing brokerage is identified in any listing details. Information is deemed reliable but is not guaranteed. If you believe any FMLS listing contains material that infringes your copyrighted work please click here to review our DMCA policy and learn how to submit a takedown request.© 2024 FMLS.
